Loading
Loading


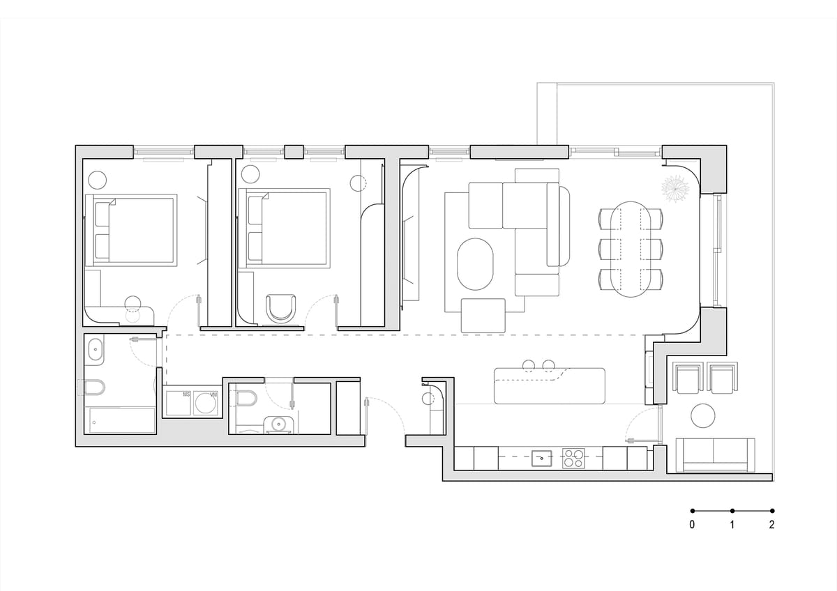
Za stan u Nišu trebalo je osmisliti enterijer u minimalističkom tonu, ali tako da ne ostavlja utisak hladnog i sterilnog prostora. Glavni projektantski izazov bio je napraviti balans između čistih arhitektonskih poteza i jasnih formi i materijala i njihovih tekstura. Odgovor na ovakav zahtev pronađen je u principima takozvanog mekog minimalizma, gde je strogost geometrije redefinisana uvođenjem organskih linija i toplih tekstura.
Prostorno zoniranje rešeno je plafonskom oblogom od drveta. Ovaj element proteže se od ulazne zone, kroz hodnik, do kraja kuhinjskog bloka, čime jasno definiše osu kretanja i servisni deo stana. Na taj način je prostor kuhinje i kretanja vizuelno izdvojen od dnevnog boravka, dajući mu intimniji karakter.