Loading
Loading


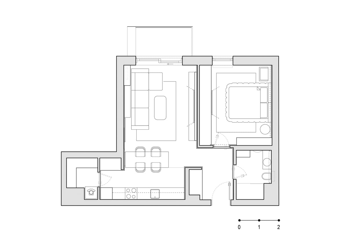
Projekat enterijera stana od 60 m2 baziran je na istraživanju tamne kolorističke palete i njenog uticaja na prostornu percepciju u manjim kvadraturama. Umesto uobičajenog pristupa koji podrazumeva svetle tonove za vizuelno proširenje prostora, ovde je primenjen koncept „omotavanja” prostora u tamne valere radi postizanja kohezivne i intimne atmosfere.
Koloristička definicija prostora nije se oslonila na standardnu crnu boju iz RAL karte. Kroz proces uzorkovanja više tonova iz NCS (Natural Colour System) sistema, odabrana je specifična nijansa najtamnije sive – ton koji se nalazi na samoj granici crne, ali zadržava dubinu koju „čista” crna često poništava.